Хотите создать уютную обстановку в своей однокомнатной квартире? Вам поможет правильный дизайн! Узнайте, как сделать интерьер вашей однушки более функциональным и эстетичным. Наша статья предлагает планировку и дизайн однокомнатных квартир, которые будут красиво и комфортно смотреться в любом исполнении.
Содержание
- Планировка
- Совмещение с балконом (лоджией)
- Основные правила
- Учет площади
- Тип планировки
- Стили
- Цветовая гамма
- Материалы отделки
- Дизайн
- Красивые примеры
Дизайн однокомнатной квартиры – задача непростая. Чтобы при входе в нее создавалась атмосфера домашнего уюта, приходится уделять особое внимание планировке и выбору стиля. Из материала данной статьи вы узнаете, как спроектировать однушку максимально функционально с учетом последних модных тенденций интерьерного дизайна.
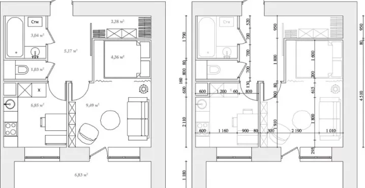
Планировка
Основной задачей в дизайне однокомнатной квартиры является выбор правильной компоновки пространства. Поэтому понадобится предварительная схема. Необходимо минимизировать вероятность ошибок еще на начальной стадии ремонта. В первую очередь при составлении проекта придется отталкиваться от особенностей планировки самой квартиры.
Она может быть усложнена выступами, скошенными стенами, узкими дверными проемами, маленькими окнами, нишами, порожками.
Жилая комната будет являться одновременно спальней, гостиной, кабинетом и зоной отдыха. Спроектировать ее дизайн нужно таким образом, чтобы помещение было уютным и не загроможденным мебелью. План позволяет увидеть наиболее рациональное расположение элементов обустройства до начала ремонта. Нужно продумать, где и как в основной комнате будет располагаться спальное место, гардероб, рабочий стол.
Совмещение с балконом (лоджией)
При наличии балкона или лоджии можно рассмотреть вариант частичного совмещения за счет сноса оконной части стены. Это увеличит площадь и наполнит комнату визуальным простором. При таком совмещении на месте бывшего балкона можно соорудить зону отдыха или маленький кабинет. Если планировка позволяет, здесь можно оборудовать кухню или мини-бар.
При этом нижнюю часть оставшейся стены можно использовать, например, как стойку, обеденный либо рабочий стол, столешницу под микроволновку. Радиаторы при совмещении комнаты с балконом или лоджией переносят. На месте бывшего балкона можно оборудовать кальянную, здесь можно установить диван, кресло-мешок, создать мини-оранжерею.
Основные правила
Чтобы дизайн квартиры смотрелся стильно, современно и был функциональным, необходимо правильно:
- расположить функциональные зоны;
- выбрать оформление потолка;
- подобрать размер и тип светильников;
- выбрать стиль интерьера всей квартиры;
- определиться с типом и материалом облицовки;
- подобрать и расположить аксессуары;
- выбрать места для установки мебели;
- сочетать напольную, настенную, потолочную отделку;
- выдержать единое цветовое решение дизайна.
Кроме того, необходимо создать уютную атмосферу, наполнив пространство визуальной легкостью и воздушностью. Все элементы обустройства 1-комнатной квартиры должны сочетаться между собой. Размеры мебели, сантехники, аксессуаров, текстиля подбирают с учетом габаритов каждого помещения.
Учет площади
При планировании проекта необходимо учитывать тип квартиры, а также площадь помещений. К примеру, в новостройках комнаты просторней, чем в типовых малогабаритных «хрущевках» или «брежневках». При рациональном подходе к планировке здесь можно создать интерьер с гардеробной, баром, еврокухней или даже небольшой цветочной оранжереей.
В комнатах площадью 15-16 кв. м места едва хватает на размещение кровати, стола и шкафа для одежды. В маленьких квартирах недостаточно места и на кухне, балконе, в санузле, прихожей. В некоторых случаях площадь основной комнаты и вовсе не превышает 8 квадратов.
Дефицит метража приходится обыгрывать покупкой эргономичной мебели и сантехники.
В квартирах с жилой площадью 19-20 кв. м на кухню порой приходится не более 2-4 кв. м. Балкон и того меньше, поэтому при обустройстве приходится оценивать уместность покупки каждого элемента, включая тип и размер аксессуаров. В однушках с общей площадью 32-34 кв. м места не намного больше. По необходимости здесь тоже совмещают зал с кухней или балконом (лоджией).
Если однокомнатная квартира просторная, возможностей для дизайна больше. 42-45 квадратных метров – хорошая основа для создания стильного интерьера в лучших современных стилях. В зале достаточно места для обустройства гостиной, видео-зоны, спального места, туалетного столика.
Тип планировки
Планировка 1-комнатной квартиры бывает разной. Это может быть, как типовой проект однушки, так и нестандартное решение. Например, практичным решением станет дизайн квартиры-студии. В этом случае можно воплотить в жизнь даже нестандартные проекты, создав в жилище атмосферу воздуха и уюта.
Типовая однушка может иметь всего 2 варианта планировки: «линейку» или «распашонку». При этом при одинаковой площади «распашонка» кажется просторней и уютней линейной планировки. Низом «распашонки» служит прихожая или коридор, в конце которого располагается входная дверь санузла. По обе стороны от него расположены входы в спальню и кухню.
Балкон может располагаться в любом из помещений.
В новостройках, характерных для панельных домов, планировка может быть иной. Здесь нередко кухня и зал находятся на одной стороне дома. Иногда застройщик создает вход на кухню из прихожей. При этом ванная и туалет могут располагаться возле нее. Иногда проблему нерациональной планировки решают частичным сносом стены, оставляя лишь перегородку.
Что касается студийной планировки, она имеет свои плюсы и минусы. В панельных домах это зачастую не всегда допустимо установленным регламентом. Однако сегодня создают и двухуровневые проекты однокомнатных квартир, открывающие большие возможности дизайна. При этом каждый из них индивидуален и отражает предпочтения заказчика.
Практически в каждом случае приходится обыгрывать комнатную перспективу. Если комната узкая и длинная, ее обустраивают вдоль одной из длинных стен, оставляя место на свободное перемещение. В иных случаях комнату корректируют, устанавливая вдоль короткой стены стенку либо гардероб. В широком и большом зале мебель можно устанавливать по островному принципу.
Обустройство санузлов зависит от их типа (раздельные или совмещенные) и площади. Иногда в целях экономии места приходится заменять ванну компактной душевой кабиной, освобождая пространство для установки стиральной машины. Далеко не всегда удается вместить здесь сушильную машинку или корзину для грязного белья. Где-то и вовсе снимают раковину, заменяют навесной полкой тумбу.
Стили
Дизайнерские решения обустройства однокомнатных квартир бывают разными. В зависимости от площади жилища и предпочтений хозяев дома это могут быть современные, винтажные стили, а также ретро и ультра. Наиболее популярными у заказчиков проектов считаются современные направления дизайна.
Лофт
Данный стиль интерьера популярен уже несколько лет. Однако сегодня он несколько отличается от первоначального, создающего атмосферу обжитого промышленного объекта. Сегодня это больше стилизация, фальшбалки, выставление коммуникаций напоказ, использование не только темных, но и светлых оттенков. Это промышленный гламур, адаптация элитного жилья, в которой объединяется не объединяемое.
Характерными чертами стиля являются бетонные стены, лестницы, балки, вентиляция, трубы. Элементами обстановки выступают дорогая мягкая мебель, зеркала, новейшая техника. Изначально этот стиль предпочитали представители богемы, сегодня такие проекты заказывают деловые люди. Его воплощают в квартирах студийной планировки.
Для него характерны открытость пространства, отсутствие перегородок, островное расположение и дозирование мебели. Такой интерьер подходит для просторных квартир с высокими потолками. Его отличают кирпичная, бетонная отделка стен, наличие металлических элементов обустройства. При этом стены могут быть украшены картинами или граффити. Главным украшением интерьера является кожаный диван.
Скандинавский
Скандинавский стиль отличается стремлением к минималистичности и избытком света, что достигается панорамными окнами. Ключевыми элементами стилистики считаются экологические материалы, использование древесины светлых оттенков. Светлые тона превалируют везде, чем достигается эффект простора.
Мебель скандинавского стиля отличается оптимальными размерами, функциональностью, тканевой или кожаной обивкой. Приоритетные черты дизайна – минимализм, практичность, продуманность планировки. Для разбавления светлых тонов в интерьере используют яркие акценты.
Фактура используемых материалов должна быть матовой.
Стены отделывают штукатуркой либо красят, оформляют природным камнем либо деревянными панелями. Такое акцентирование пространства позволяет эффективно делить его на отдельные функциональные зоны. Потолок должен быть простым, ровным и окрашенным. Если используют натяжную пленку, она должна быть матовой. Ванная комната может быть выложена однотонным кафелем.
Минимализм
Это одно из наиболее уместных направлений дизайна в обустройстве однокомнатных квартир. Сегодня оно считается ультрасовременным и востребованным. Ему свойственно зонирование пространства, обустройство функциональной мебелью. Ее количество минимально, как и аксессуаров и декора.
Моделированию пространства здесь уделяется особое внимание. При этом нередко увеличивают размер оконных проемов, а также убирают межкомнатные перегородки. В интерьере должно быть только самое необходимое. В дизайне прослеживается строгость, симметричность и четкость линий. Важна идеальность пропорций.
При всем этом интерьер отнюдь не бюджетный. При обустройстве могут быть использованы камень, дерево, стекло, металл, кафель, пластик. В дизайне не должно быть лишней пестроты и украшательства. Идеальные цвета минимализма – нейтральные и светлые древесные. В интерьере можно сочетать не более трех спокойных тонов.
Модерн
Данный стиль считается сложным в реализации, одним из модных и оригинальных на сегодняшний день. Идеи его воплощения могут быть разными, при этом ресурсами будут плавность и извилистость линий и форм. Это могут быть волнообразные формы гипсокартонных потолков, изгибы гарнитура, мебели. Четкие и выраженные углы стилистика не приемлет.
Цветовые решения склоняются в пользу теплых и приглушенных светлых оттенков. При этом особое значение придается древесным тонам (цвет бука, венге, мореного дуба). В дизайне можно использовать витраж, металл и стекло.
Текстиля должно быть как можно меньше, синтетические материалы должны превалировать.
Мебель стиля модерн отличается компактностью, функциональностью и непохожестью на классическую. Декора и аксессуаров здесь немного, чего не сказать о древесине. Потолок может быть деревянным, натяжным, гипсокартонным. Стены можно оформить задрапированным шелком, оклеить обоями. Светильники должны быть компактными современными.
Цветовая гамма
Цветовое решение однокомнатной квартиры может быть разным. Это зависит от ресурсов конкретного стиля, освещенности жилища, предпочтений хозяев дома. Например, при выборе расцветки для холодной квартиры останавливаются на теплых тонах. Прохладные в этом случае неуместны, они сделают интерьер еще темнее и неуютней.
Сегодня в центре внимания светлые и благородные тона. Среди них наиболее актуальны бежевый, светлый венге, молочный, сливочный, серо-коричневый, серебристый, жемчужный. Сочетать в дизайне желательно не более 3-4 оттенков:
- 1 из них является доминирующим;
- 1 – акцентным;
- 2 оставшихся – тонами, соединяющими 2 первых.
Интерьер не должен быть блеклым, поэтому акцентные тона обычно яркие. Однако они чистые и благородные, сочетающиеся с используемыми оттенками конкретного интерьера. В моде холодный синий, прохладный изумруд, шоколадный. Отлично смотрится в современном дизайне винный, терракотовый, яркий фисташковый, насыщенный оранжевый, темно-желтый.
Модно сочетание контрастных тонов. Например, это может быть дуэт черного и белого, черного с белым и светло-серым. Популярно сочетание нейтральных тонов с древесными оттенками. Они вносят в эмоциональное восприятие пространства живые краски. К примеру, цветовой гаммой в дизайне интерьера однокомнатной квартиры может стать комбинация белого, бежевого и древесного.
Светлые тона (например, белый и сливочный) можно дополнить лимонным или фисташковым. Это избавит интерьер от блеклости и скуки. К белому и металлику можно добавить шоколадный цвет. Четвертым компаньоном цветовой гаммы может стать молочный или сливочный.
Белый, металлический серый и холодный коричневый можно дополнить бежевым или песочным оттенком. Фисташковый тон гармонично комбинируется с бежевым, светлым древесным и кофейным. Кроме того, он может украсить дизайн в черно-бежевых тонах. Винный оттенок может стать акцентом бело-серого, бело-древесного интерьера.
Материалы отделки
Выбор отделочных материалов зависит от ресурсов конкретного интерьерного стиля. Например, для экологических стилей приоритетной отделкой будет древесина и камень. При воплощении современного дизайна нужно использовать пластик, стекло, металл. Для отделки винтажных интерьеров используют текстиль, бумагу, камень, дерево.
Стены
Для оформления стен сегодня используется разный материал. Наиболее популярным типом сырья являются обои. Они доступны в цене, отличаются разнообразием фактуры, дизайна, ширины и состава. Кроме того, они отличаются и способом оклейки. Например, рулонные разновидности клеят традиционным способом, жидкие – разводят и намазывают на стены, подобно штукатурке.
Для оформления стен стараются брать обои-компаньоны. Они позволяют расставить акценты, обозначить границы разных функциональных зон, сделать дизайн интересным. Эти полотна отличаются метровой шириной, клеить их удобно и быстро. Их фактура может имитировать фактуру камня, кирпича, плитки, древесины, паркета.
Стены ванной принято оклеивать плиткой. Ее ассортимент весьма разнообразен. Она может быть гладкой, рельефной, глянцевой, матовой, зеркальной, стеклянной, металлической, прозрачной. Данный облицовочный материал отличается вариативностью формы и размера. Отделкой ванны может стать и мозаика, которая бывает традиционной и с сеточной основой.
Нередко стены оформляют панелями из пластика, способного имитировать фактуру любого материала.
В кухне для оформления можно использовать виниловые наклейки, имитирующие плитку.
В основной комнате часть стены в зависимости от дизайна иногда отделывают искусственным камнем. Если площадь однокомнатной квартиры позволяет, каминную зону оформляют кирпичом. В иных случаях для облицовки используют бетон, краску и стеновые панели, а также рейки. Кроме того, можно отделывать стены штукатуркой, формируя разный эффект и рельеф.
Нередко в дизайне стен зала используется стеновой гипсокартон. Из него создают оформление зоны изголовья спальни, им акцентируют пространство. Помимо него зону спальни обозначают ламинатом и панелями. Изредка проект предусматривает украшение стен в виде граффити или иных рисунков.
Пол
Материалом напольного покрытия в зависимости от стиля может стать линолеум, паркет, ламинат, плитка, камень, наливной пол. Выбор облицовочного материала широк, в каждой линейке вниманию покупателей представлен огромный ассортимент материала, отличающегося не только цветом, но и фактурой. Даже линолеум сегодня может имитировать разный вид облицовки, включая паркетную кладку и даже ковровое покрытие.
Такое оформление позволяет зонировать пространство, ковер из плитки смотрится неординарно и стильно. Варианты рисунков такого пола могут быть разными, от простого геометрического узора до стилизованного орнамента или дамасских узоров. Укладка также разнится: она бывает традиционной, ромбовидной, сложной паркетной.
Наливной пол может быть не только однотонным: благодаря ему можно украсить ванну, балкон или иное помещение жилища красивым и эффектным рисунком. При этом он может быть как традиционным, так и объемным, трехмерным. Такое покрытие оригинальное, долговечное и практичное. Оно может быть матовым и глянцевым.
Паркетное покрытие придает интерьеру однокомнатной квартиры особый вид. При этом варианты укладки могут быть самыми разнообразными, от «шахматки», «диагонали» и «елочки» до сложных рисунков, получаемых за счет использования разных по размеру, цвету и форме элементов. Такое покрытие универсально и подходит к большинству современных стилей Камень, используемый в работе, отличается практичностью, долговечностью и эстетичностью.
Потолок
Потолочным материалом при отделке однокомнатной квартиры может стать гипсокартон, натяжная пленка, кассеты, рейки, панели, полистирольная потолочная плитка. Каждый тип материала имеет свои особенности, отличается разнообразием дизайна и подбирается под индивидуальный проект интерьера.
К примеру, плитка бюджетна, проста в поклейке, ее лицевую поверхность можно неоднократно окрашивать. Она подходит для отделки потолка в интерьере разных стилей. Однако сегодня она уступает таким покрытиям, как натяжная пленка и гипсокартон.
Пленка и вовсе универсальна, она проста в монтаже, эстетически привлекательна, долговечна.
В случае протечки с квартиры сверху она растягивается, а после устранения проблемы принимает первоначальную форму. При этом она может быть не только однотонной, сатиновой, матовой, зеркальной, но и принтованной. Современные дизайнеры нередко создают проекты однушек, взяв за основу оформления потолка с рисунком. Кассетные варианты хорошо смотрятся в квартирах с баром, квартирах-студиях.
Дизайн
Обустройству однокомнатной квартиры уделяется особое внимание. При этом выбор мебели, сантехники, текстиля, аксессуаров подчиняется не только предпочтениям владельца, но и количеству проживающих, их возрасту, полу, образу жизни. Например, квартира девушки отличается расцветкой мебели, облицовки, типом аксессуаров.
Двухуровневая квартира имеет свои нюансы обустройства. Это длинные шторы, габаритная мебель, массивные светильники, островной принцип расстановки мебели. В таких жилищах нередко имеются лестницы, функциональные зоны располагаются на разных уровнях. Например, наверху можно оформить спальное место, внизу – гостевое и кухню.
Жилище делового человека зачастую выглядит брутально и отличается минималистичностью элементов обустройства. Мужчинам несвойственна тяга к излишнему украшательству. Для них важна практичность, функциональность и строгая эстетика. Это стильная и дорогая мебель, однотонные шторы, мягкий диван, спальное место, шкаф, современная техника, видеозона.
Мебель в квартиру подбирается с учетом размеров и формы помещений. В маленькую кухню лучше купить гарнитур не только с напольными, но и навесными шкафами. При этом ее цвет должен быть светлым, так создается эффект простора. То же правило касается и цвета настенной, потолочной и напольной облицовки. В маленьких квартирах не нужны материалы с крупным и сложным рисунком. Лучше сделать ставку на фактуру.
В большой однокомнатной квартире можно обустроить уютную гостевую зону, купив диван, кресла, чайный столик. В небольшом пространстве придется ограничить количество функциональных зон. Крайне нежелательно в таком случае делить зал несколькими перегородками или ширмами. Это уменьшит освещенность комнаты, сделает ее неуютной.
Красивые примеры
Проекты дизайна однокомнатных квартир могут быть самыми разнообразными. При планировании можно учитывать не только рекомендации профессиональных дизайнеров, но и идеи, взятые из интернета. Предлагаем 12 примеров гармоничного оформления однокомнатной квартиры.
- Проект однокомнатной квартиры с использованием перегородок в открытом пространстве.
- Пример объединения комнаты, кухни и балкона, стильный дизайн в духе современных традиций.
- Оригинальное решение дизайна квартиры студийной планировки, островное расположение мебели.
- Пример обустройства квартиры с совмещением основной комнаты и балкона, милималистичный дизайн.
- Студийная планировка однокомнатной квартиры с созданием уютной атмосферы, обустройством спальной и гостевой зон.
- Разделение пространства на разные функциональные зоны посредством перегородок и подиума.
- Проект квартиры для девушки, выполненный в светлых оттенках с минимальным набором элементов обустройства.
- Пример гармоничного отделения спальной зоны, не уменьшающего степень освещенности единственной жилой комнаты.
- Обустройство небольшого зала с зонированием пространства.
- Отгораживание спального места в небольшом зале, минимальный набор мебели.
5 ошибок при создании дизайна интерьера маленькой квартиры смотрите в видео.
Чем отличается ландшафтный дизайн от садово огородного?
Ландшафтный дизайн и садовый дизайн – это разные виды дизайна, касающиеся уличных и садовых пространств.
Ландшафтный дизайн определяется как наука и искусство проектирования ландшафта, который включает в себя не только сады, но и парки, зоны отдыха, участки и т.д. Целью является создание красивых, функциональных и долговечных пространств для жителей и гостей.
Садовый дизайн же нацелен на создание эффективной и удобной зоны огорода для растительности и отдыха. Это может включать в себя выбор и расстановку растительных элементов, устройство дорожек и систем полива, а также выбор мебели и аксессуаров для отдыха.
В общем, основное различие между ландшафтным дизайном и садовым дизайном
Ландшафтный дизайн и садово-огородный дизайн имеют разные основные цели. Ландшафтный дизайн включает в себя проектирование, планирование и управление окружающей средой для улучшения эстетического вида и функциональности. Это может включать в себя создание газонов, дорожек, парковых участков, водных элементов и других ландшафтных элементов.
Садово-огородный дизайн, на другой стороне, фокусируется на создании и поддержании участков для выращивания растительности, как овощей, цветов или других растительных элементов. Это может включать в себя создание грядок, участков для огорода, водоемов для полива, парников и других садовых элементов.
